Selected Project

Sugar Lake Cabin

Recreational cabin | Sugar Lake, British Columbia

A recreational cabin on Sugar Lake designed as a family summer retreat on a steep hillside site. The plan and massing were shaped to work with the terrain rather than flatten or fight it, allowing the cabin to sit more naturally in the landscape while opening key living spaces toward the lake. Built entirely with insulated concrete forms, the project combines a straightforward design approach with durability and efficient performance.

Location
Sugar Lake, British Columbia

Type
Recreational Cabin

Construction
Insulated Concrete Forms (ICF)

Project Overview

Designed to work with the terrain

Sugar Lake Cabin was designed as a seasonal retreat for a family seeking a simple and durable place to gather at the lake. Set on a steep hillside, the project was shaped by the need to fit the building carefully into the terrain rather than impose a flatter, more disruptive solution on the site.

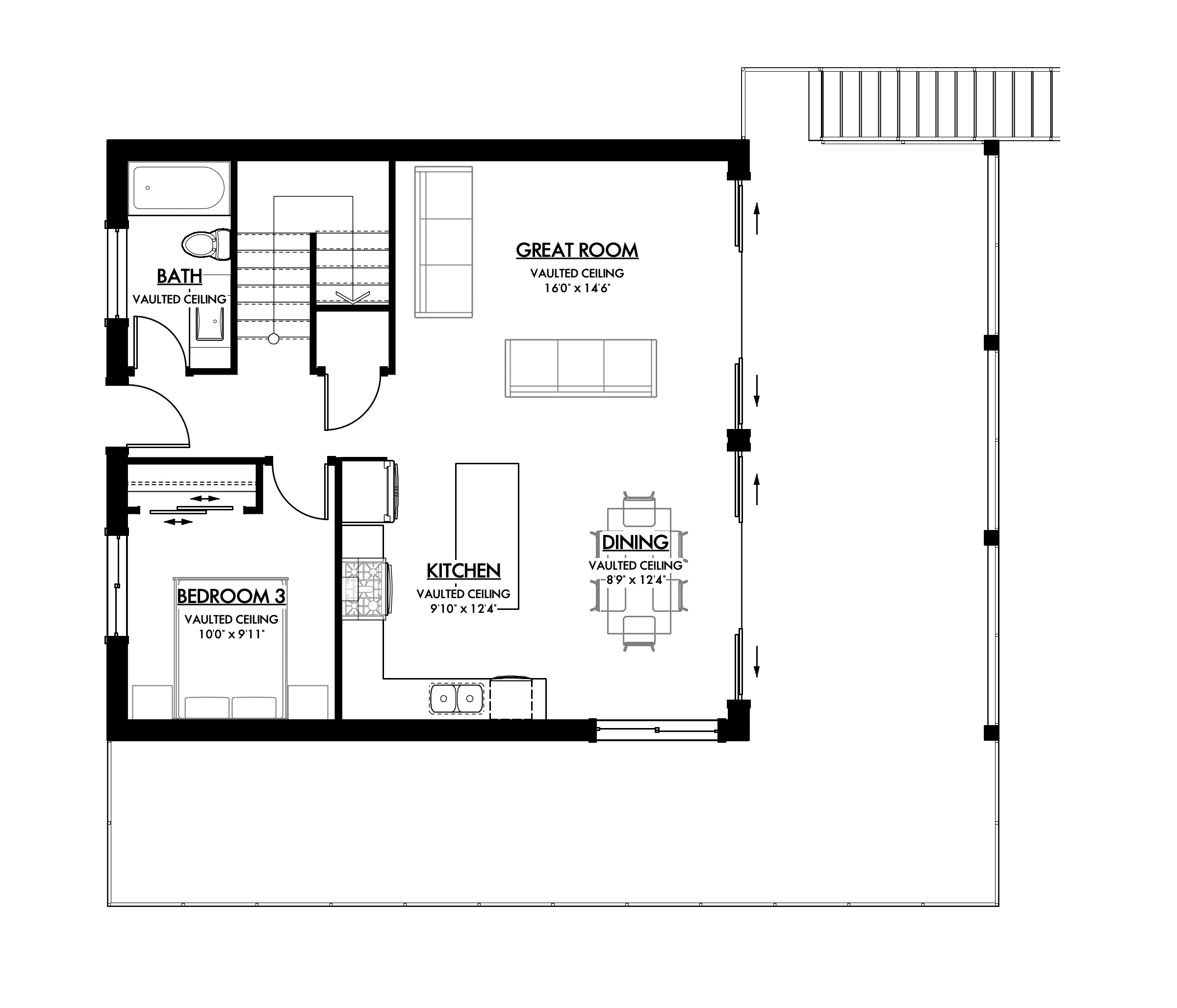
The main living spaces were placed on the upper level to take advantage of light, outlook, and a stronger connection to the lake. A generous covered deck extends those spaces outward, creating room for outdoor living while giving the cabin a sheltered place to gather through changing weather and throughout the summer season.

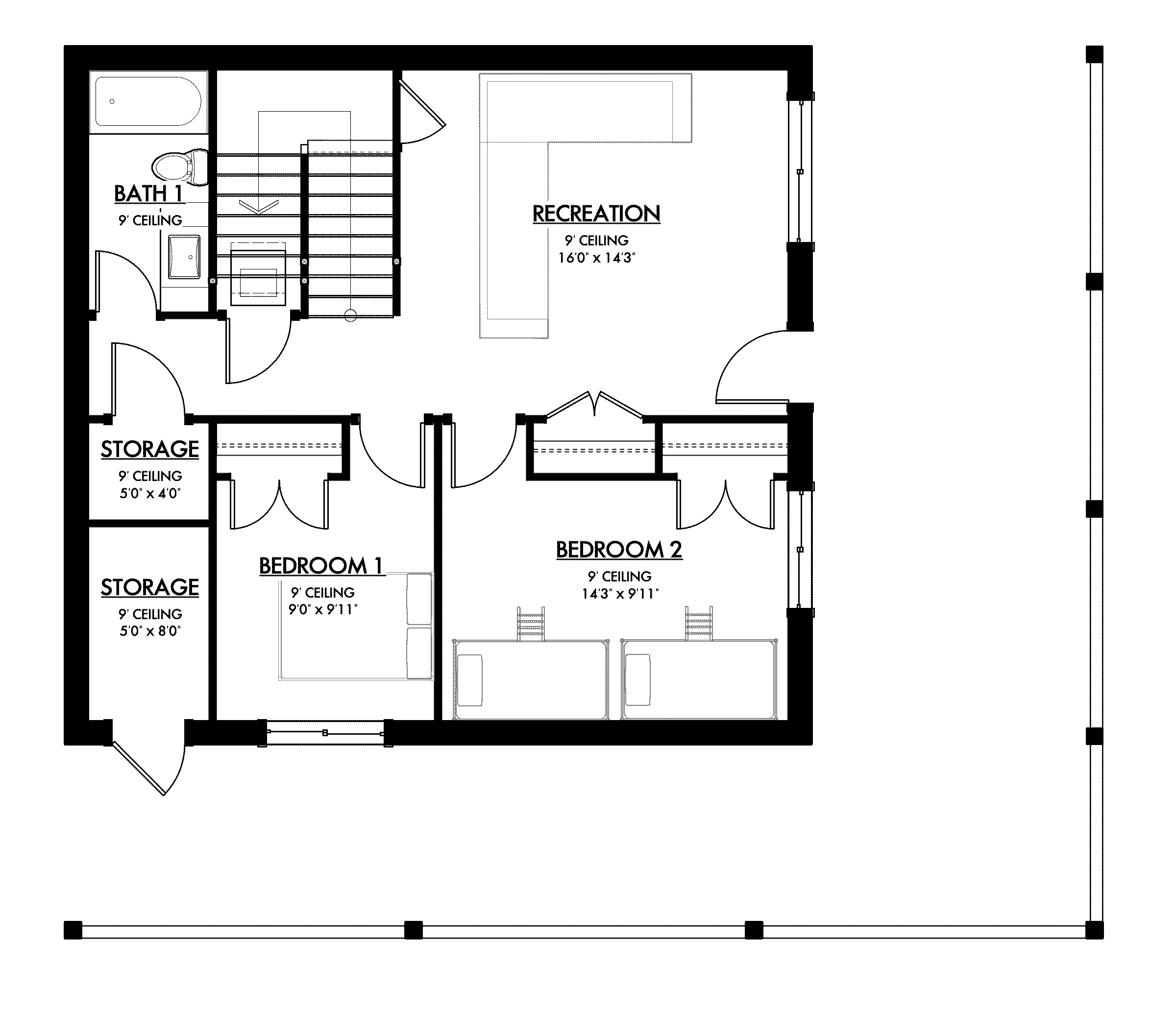
Below, the lower level provides additional bedrooms and recreation space for family and guests. This arrangement makes practical use of the slope while keeping the plan straightforward and easy to live in. The form of the cabin remains restrained, but the rooflines, glazing, and massing were all developed in direct response to the site and the experience of being there.

Constructed entirely with insulated concrete forms, the cabin was also designed for durability, efficient heating and cooling, and long-term performance. The result is a recreational property that feels grounded in its setting, practical in its planning, and well suited to the way the family will use it over time.

Project Drawings

Selected floor plans

The floor plans reflect the logic of the site: main gathering spaces are lifted to the upper level to capture outlook and openness, while the lower floor provides quieter sleeping and recreation space set into the hillside.

Lower level | Guest bedrooms and recreation space set into the hillside
Upper level | Main living spaces oriented to light, views, and the covered deck