Selected Project

Gregory Road Residence

Renovation and addition | West Kelowna, BC

A substantial renovation and addition to an older home in West Kelowna. Rather than treating the work as a simple cosmetic update, the project rethinks the house more fully, improving circulation, livability, and the way the property is used.

Project Overview

Reworking the house as a whole

Gregory Road Residence is a substantial renovation and addition to an older home that was dated, worn, and no longer working well for the way the property could be used. Rather than treating the work as a simple cosmetic update, the project became a more complete rethinking of the house.

The existing lower level was retained where practical, but cleaned up and improved. An old stair was removed and replaced with a new stair that helped reorganize circulation through the home. Above, the upper floor was substantially reworked, including the enclosure of a former deck over the garage to create new interior living space.

The project also involved removing the old roof and building an entirely new roof system, allowing the house to be reshaped more coherently inside and out. A large rear patio was added to strengthen the connection between the main living areas and the private backyard, helping the renovation improve not just the amount of space in the house, but the way it functions day to day.

Completed home

Finished front exterior

Finished front exterior of the Gregory project.

Original house

Before the renovation

The renovation began with an older house that still had usable space and structure, but its exterior character and internal arrangement no longer supported the way the property could be used.

The original front elevation helps show the starting point of the project and how the work moved beyond a simple addition toward a more complete reworking of the house.

Design / pre-visualization

Early exterior study

Floor plans

Floor plans

The design reworks the existing house and adds new space in a way that improves circulation, livability, and the overall coherence of the home.

Main floor

The main floor reorganizes the primary living spaces to create a clearer, more functional relationship between kitchen, dining, and everyday family use.

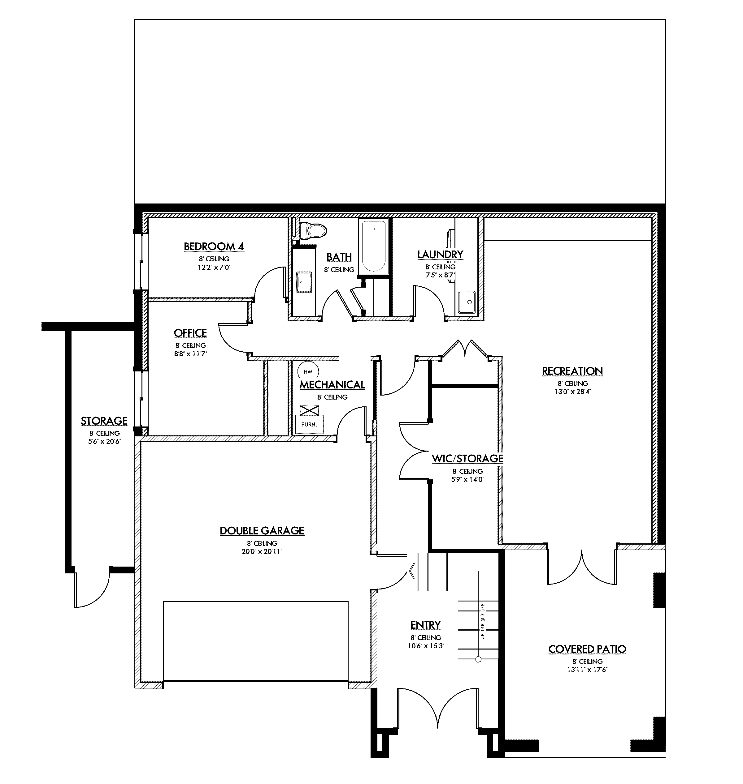
Lower level

The lower level adds recreation, service, and secondary living space, reinforcing the renovation as a more complete rethinking of the house rather than a simple add-on.

This project includes both completed work and design material developed through the renovation process. The rendering and floor plans shown here help illustrate how the house was reworked over time.

Back to projects